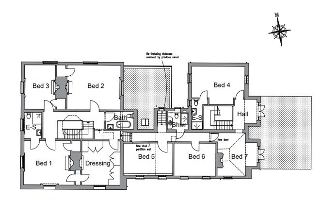
The Orchard was a grade II listed building, an early 19th century property in the late Georgian architectural style. Previous occupants had undertaken some unapproved internal alterations to the house which the current owners wished to rectify and make some further internal changes themselves. This involved re-instating a non-historic staircase and a corridor to improve the circulation pattern inside the property.
Listed Buildings require Listed Building Consent for works made to the exterior and interior of the building. Therefore, Heritage Unlimited were engaged to obtain and received permission for both the proposed and retrospective works at this residential property. Listed Building applications also require a Design & Access Statement to support the submission which we completed alongside a Heritage Statement and produced plans to demonstrate the scope of works required.



